• Vie de l'Université,

Tiers-lieu de la Manufacture : le projet en images

Publié le 20 décembre 2024 Mis à jour le 17 octobre 2025

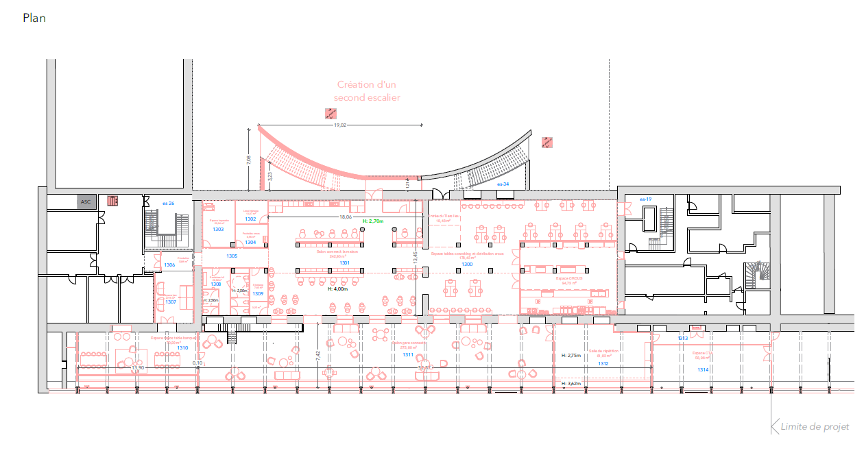
Le plan du projet



 


Premiers ateliers de travail


  
  
?Malwina Debroise


L'avant-corps

  
  
  ?David Venier


Le futur tiers-lieu (projet architecte)


  
  
?Atelier Braillon Architecte


Le chantier : début des travaux en décembre 2024 

Chantier de jour / Chantier de nuit pendant la période de fermeture de l'université.

? Création d'un 2e escalier dans la cour nord : un chantier pharaonique !

  
  
?Guy Olagnon